వాస్తవపరిస్థితుల నేపధ్యం


అంతర్గత రోడ్ల అభివృద్ధి
లెవెల్ పెంచి రోడ్లు నిర్మించడం మరియు వైద్యుత్ లైన్లను ఏర్పాటు చేయడం ద్వారా లేఅవుట్లో యాక్సెసిబిలిటీ మెరుగుపరచడం.
సుమారుగా సం.2000ల వరకు ఆంధ్రప్రదేశ్లో రియల్ ఎస్టేట్ రంగం ఒక ప్రధాన లోపాన్ని ఎదుర్కొంది — సమగ్ర పట్టణ విధానాలు మరియు నియంత్రణ పర్యవేక్షణల యొక్క లేమి వల్ల అనేక అభివృద్ధిదారులు, స్థానిక పంచాయతీల నుండి లేఅవుట్ అప్రూవల్స్ పొంది వెంటనే, వారు SRO ఉప విభజనల ద్వారా ప్లాట్లను బేసిక్ మౌలిక సదుపాయాలు లేదా అమెనిటీలను అందించకుండానే కొనుగోలుదారులకు అమ్మకాలు జరిపారు.
దీని ఫలితంగా, సాయిమాయూరి లాంటి అనేక పాత లేఅవుట్లు ఈ క్రింది సదుపాయాలను డెవలపర్ నుండి పొందలేకపోయాయి:
ప్రమాణాలతో కూడిన అంతర్గత రహదారులు
డ్రైనేజ్ మరియు సీవరేజ్ వ్యవస్థలు
విద్యుత్ లైన్లు మరియు వీధి లైట్లు
పార్కులు మరియు ఓపెన్ స్పేసులు
నీటి సరఫరా మరియు ఇతర యుటిలిటీ సదుపాయాలు
ఈ లేఅవుట్ను ప్రస్తుత పట్టణ ప్రణాళిక ప్రమాణాలకు అనుగుణంగా అభివృద్ధి చేయడం, తద్వారా మన ఆస్తుల విలువను మెరుగుపరచడమే మన లక్ష్యం.


డ్రైనేజీ వ్యవస్థ నిర్మాణం
నివాసానికి సిద్ధంగా ప్లాట్లు ఉండే విధంగా మౌలిక సదుపాయాలను కల్పించడం ద్వారా ఎక్కువ మంది ఆసక్తికర కొనుగోలుదారులను ఆకర్షించవచ్చు


ఎంట్రన్స్ మరియు సైనేజ్ ఏర్పాటు
ఆకర్షణీయమైన ప్రవేశద్వారం మరియు ప్లాట్లకు దిశలు/సంకేతాల ఏర్పాటు చిరునామాను మరింత సులభంగా గుర్తించగలిగేలా చేస్తుంది.
ప్లాట్లు
సాయిమాయూరి లేఅవుట్ను సందర్శించండి – ఇది సురాయపాలెంలో ప్రీమియం రియల్ ఎస్టేట్ అవకాశంగా తీర్చిదిద్దబడుతోంది. ప్రస్తుత ప్లాటు యజమానుల సమన్వయంతో మౌలిక సదుపాయాలను అభివృద్ధి చేసి, ప్లాట్ యజమానులు మరియు కొనుగోలుదారుల ఆస్తి విలువను పెంపొందించడమే లక్ష్యంగా భవిష్యత్తు కార్యక్రమాలు రూపొందించబడతాయి.


Google location map

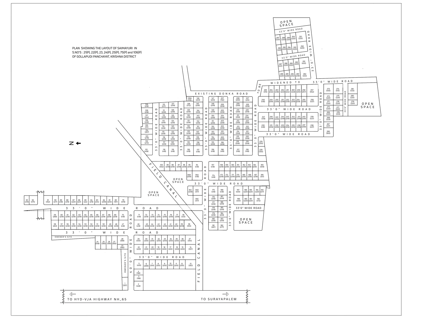
Reference Layout Map


Gallery
Explore our community's shared infrastructure and plot development initiatives.
Connecting plot owners for shared infrastructure development.
For more details
For updates leave you contact :
info@saimayuri.in
+91 9491347770
© 2025. All rights reserved.


